New House
Challenging topography, no problem, this house slips seamlessly into its’ lot.
A contemporary interior, well organized, easy flow. Visual delights & amenities abound.
These unique facades are rich in material selection & attention to detail, something so missing in todays’ spec. housing. But with it, will more than hold its’ own in an established neighborhood of estate homes.
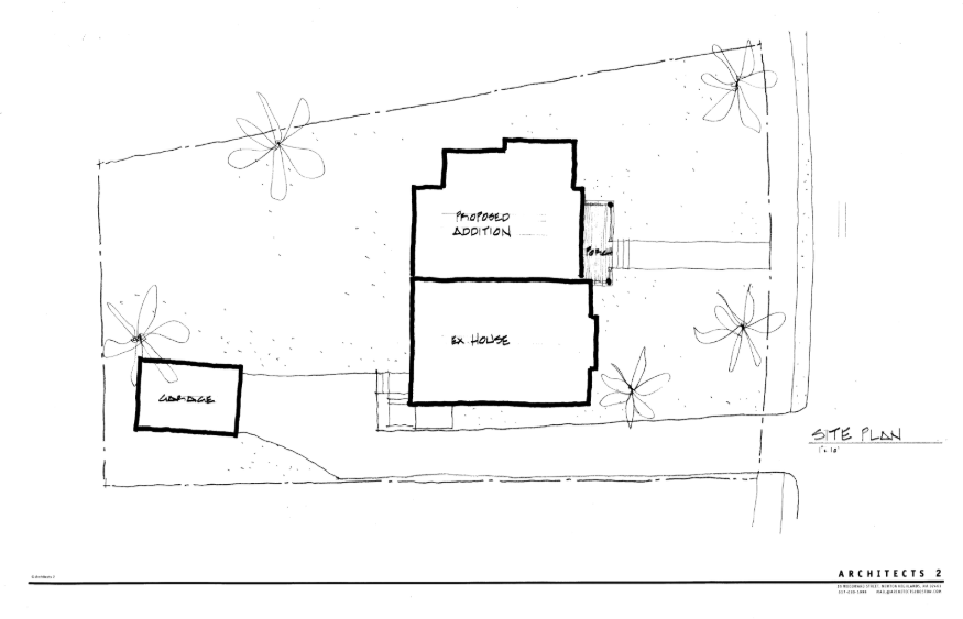
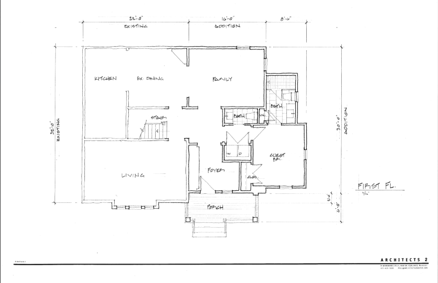
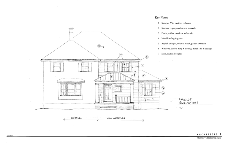
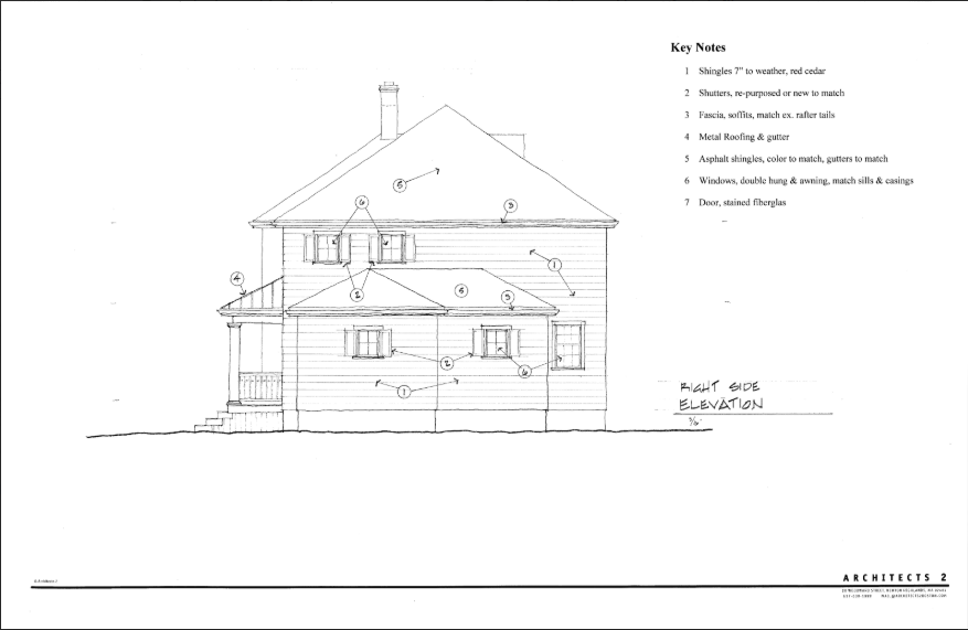
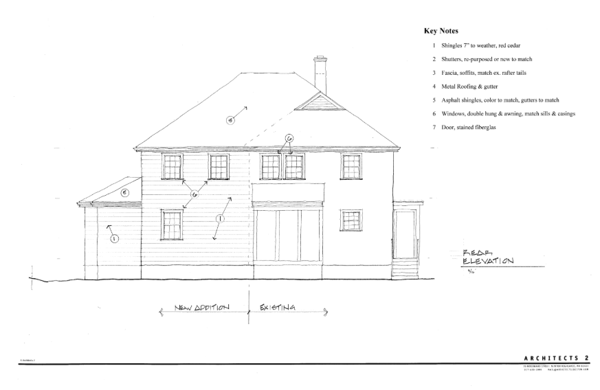
Addition w/ Historic Review
Historic reviews are becoming ever more commonplace in most towns these days.
Very often the more prudent architectural approach is for a seamless transition of old/new.
Never a bad choice & that is the case here.
But the details are crucial for success; roof slopes, eave details, window & door trim packages, window size & pattern of placement all factor into that seamless look for a successful endeavor.
Realize too that details don’t break the bank.
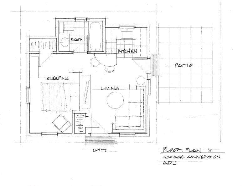
Accessory Dwelling Unit
This is the fifth ADU we have executed for clients over the past 3 years. Now the State has endorsed the concept & is allowing them everywhere. Not all towns, however, look favorably upon them. We have fit up basements, attached garages, & like this one, in a detached garage.
ADUs are targeting a missing niche in the housing market; compact & more affordable rental housing. But depending on project particulars, they can also be not so affordable to build.
A good long-term investment, yes. A social awareness contribution, yes again.
Historic Structure – Repurposed
Listed on Rhode Island’s Registry of Historic Places & in a village on the National Register,
this 18th century post & beam is ready for a life renewed.
The original structure was recently moved leaving behind several cling on wings added over the years. It now resides on a good foundation.
Our charge is to integrate two residential units on the second floor with retail space on the first.
The challenges include; integrating required egress stairs, seamlessly, MEP systems & adequately insulating a structure that has no stud cavities to fill. Barriers free as well.
Historic Commission reviews are upcoming, stay tuned.
Master Planning
This project started 4 years ago. The couple had just purchased the house knowing they could not afford to do all they wanted at one time. So a master plan was developed for all they desired. It included; new kitchen, enlarged dining, bath, study, garage, expanded family room & basement fit-out. We sketched it up with a multitude of options. The most critical need, the kitchen & a living area refresh was executed first. The kitchen remained in its’ current location, more open & better organized. Now the exterior is near completion. Clean lines have made such a difference, not to mention the color. The word dramatic comes to mind. Landscaping this spring.
























